Toggle navigation
MiiC OPTON (Europe) GmbH
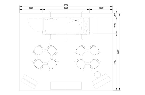
Wire Tube Düsseldorf 2018
Planungsbeispiel schließen
Projekt anschauen